The Steadings

Development Timeline

Find out more about our programme of works by exploring the development timeline.

Spring 2026
Summer 2026
Autumn 2026
Spring 2027
TBC
Early Summer 2021
Autumn 2021
Autumn 2021
February 2022
Spring 2022
Autumn 2022
Winter 2022 / 2023
January 2024
January 2024
March 2024
April 2024
May 2024
July 2024
Autumn 2024
December 2024
Spring 2025
August 2025
Current Milestone

HarperCrewe selected by BDL to deliver 129 new homes within Parcel 2D.

Upcoming Milestone

Works start on the extension of the Primary Street through Parcels 2D & 2E, along with associated landscaping works.

Upcoming Milestone

Keepmoat to start construction on Parcel 2A for 100 new homes of various sizes, including the provision of 31% affordable homes.

HarperCrewe to start construction on Parcel 2D for 129 new homes including 31% affordable homes.

Upcoming Milestone

Sales centre open and new homes available.

Construction work expected on the first employment land parcels area (subject to planning permission).

Upcoming Milestone

Work expected on the first employment area (subject to planning permission)

Register your interest
Past Milestone

Early highway works commence to prepare for the main build

Past Milestone

HarperCrewe started on site as the first residential phase got underway

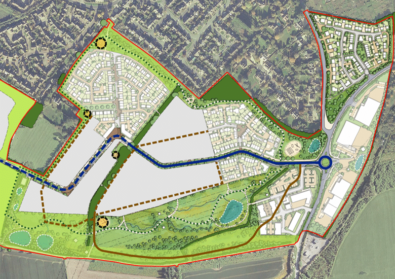
View Masterplan
Past Milestone

Work began on the new roundabout on Spratsgate Lane and access road for construction vehicles

Past Milestone

New roundabout on Spratsgate Lane finished

Past Milestone

Infrastructure work to prepare the second residential phase began

Past Milestone

First house completed on Phase 1A, built by HarperCrewe

Register your interest
Past Milestone

The new spine road is finished, connecting the eastern entrance to the two western entrances and enabling the remaining development to come forward

Past Milestone

Work starts on new hall at Siddington Primary School.

Past Milestone

Work started on new access road through Phase 2.

Past Milestone

Work started on new open spaces and landscaping around parcels 2A, 2B & 2C

Past Milestone

Homes England has selected Keepmoat Homes as developer for Parcel 2A. This parcel includes 100 new homes – including 31 affordable. Homes England will be preparing a detailed design code for Parcels 2A, 2B & 2C

Past Milestone

Second anniversary of construction work starting at The Steadings

Past Milestone

Improvement works began on the Fire Station roundabout and Love Lane / Midland Road junction.

Past Milestone

HarperCrewe has completed the first residential phase of 68 homes, along with the associated infrastructure and connections

Past Milestone

New legacy building completed at Siddington and handed over to Corinium Education Trust
to host the new Steadings Primary School from September 2026.

Past Milestone

Complete first section of new access road from Spratsgate Lane through Parcels 2A, 2B & 2C.

Past Milestone

Improvement works on the Fire Station roundabout complete (Love Lane / Midland Road junction complete earlier in the year).

Join our mailing list